Ideales 1-2-Fam.Haus im Zentrum Würselens für handwerkbegabte Familie evtl. auch für Kapitalanleger
-
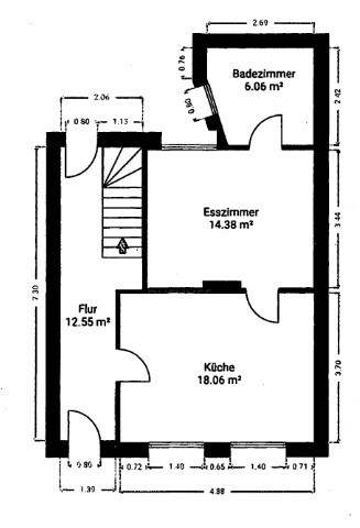
Das beidseitig angebaute Wohnhaus am Lindenplatz in Würselen erstreckt sich über drei Etagen und bietet vielfältige Nutzungsmöglichkeiten – vom großzügigen Einfamilienhaus bis hin zum 2- oder 3-Parteienhaus. Das Dachgeschoss wurde 1966 (Baugenehmigung vorhanden) ausgebaut, in den 1980er-Jahren erfolgte u.a. eine Sanierung der Fenster und der Bäder.
Die Aufteilung entspricht heute nicht mehr den modernen Wohnansprüchen, sodass eine Modernisierung oder ein Umbau m.E. erforderlich ist. Die Immobilie eignet sich besonders für Käufer, die Wert auf individuelle Gestaltung legen und die absolute zentrale Lage zu schätzen wissen. -
Flächen
- Zimmer insgesamt: 6
Zustand & Erschließung
- Baujahr: 1930-1947-1980
- Zustand: teilsaniert
Sonstiges
Ein ausführliches Expose erhalten Sie auf Anfrage. Termine zur Besichtigung stimmen Sie bitte mit unserem Büro ab.
-
weiße Kunststofffenster mit überwiegen Rollläden, neue Gasheizung aus 2022, Haussprechanlage, Böden teilweise in Keramikfliesen, Laminat bzw. Teppichboden. 4 sep. Stromkreisläufe -EG-OG-DG und Allgemeinstrom- Auf jeder Etage befindet sich ein Bad.
-
Im Herzen von Würselen mit allen Einkaufsmöglichkeiten, Bäckereien, Apotheken, Ärzten, Banken und weiteren Dienstleistern findet man alles und auch bequem fußläufig erreichbar. Trotz der Innenstadtlage sind Erholung und Natur schnell erreichbar. Der beliebte Wurmtalpark mit seinen Spazier- und Radwegen liegt nur wenige Minuten entfernt und lädt zu ausgedehnten Aktivitäten im Grünen ein. Sportvereine, Schwimmbäder und weitere Freizeitangebote befinden sich ebenfalls in unmittelbarer Nähe.
Mehrere Buslinien sichern den schnellen Anschluss an Aachen und die Nachbarorte. Mit dem Auto sind die Autobahnen A4 und A44 in wenigen Minuten erreichbar. So lassen sich Köln, Düsseldorf sowie Belgien und die Niederlande zügig erreichen.
- Lage/Gebiet: 1A






